亮馬水晶大廈辦公裝修工程
| 項目名稱 | 亮馬水晶大廈辦公裝修工程 | 行業屬性 | 金融/國企/事業機構 |
| 項目地址 | 北京市朝陽區酒仙橋南路 | 項目造價 | 60.5萬 |
| 主關鍵詞 |
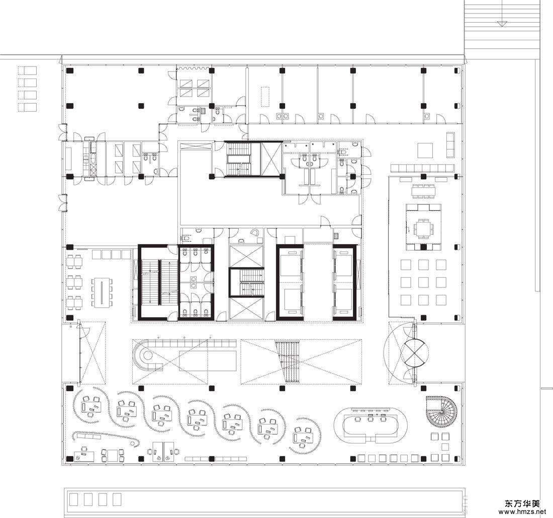
▄原建筑結構分析: 簡單單的色調搭配出不凡的空間,用獨特的設計理念創建全方位的新視覺體驗。頂面利用吊頂燈帶和發光燈片作為主要照明方式,突出光線的柔和,墻面起到了柔化空間的作用,消除了空間的嚴肅感。 時尚主流元素在優雅格局的映襯下彰顯時尚,實現了實用性與美觀性的統一。
▄設計需求: 本案要求辦公的環境隨意、舒適、可以任意變化,給人予輕松愉快的感受,沒有傳統辦公室壓抑的氛圍,要有企業文化的特色,要非常符合現代商務人士的審美和辦公需求。
▄設計風格定位: 本案例總體設計風格為現代簡約風格,在設計上強調空間實際的使用功能,并結合簡潔的造型以表現現代、大氣的辦公環境,整套方案以暖色調為主,與常見的辦公空間不同,給人舒適大方的感覺?!皶r尚、創新、品質、高端”作為空間設計定位,設計手法上突出主題,突顯定位,


北京鑄誠大廈辦公裝修工程
北京銀河SOHO辦公裝修工程
301醫院裝修工程
