合肥川香火鍋餐飲裝修工程
| 項目名稱 | 合肥川香火鍋餐飲裝修工程 | 行業屬性 | 酒店/餐飲/會所 |
| 項目地址 | 合肥市太湖路省直家園 | 項目造價 | 65萬 |
| 主關鍵詞 |
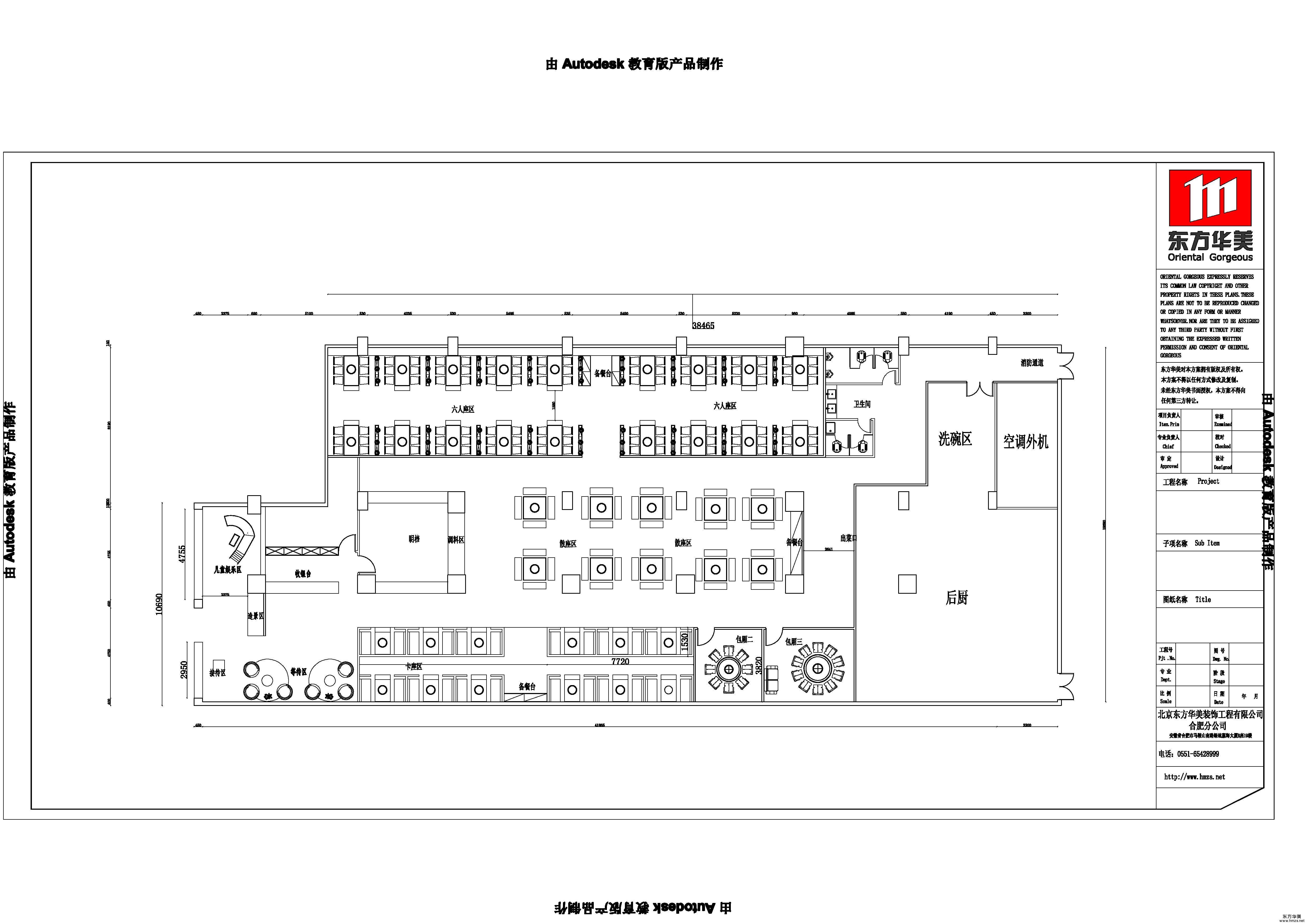
▄原建筑結構分析: 本項目為合肥川香火鍋餐飲裝修工程裝修設計施工案例,項目面積為800平米,設計師以中國傳統文化為依托,通過傳統吉祥喜慶圖案和色彩的使用,烘托火鍋店的氛圍,不論從中式窗格隔斷的抽象處理還是方圓的餐桌都打破了原有的古板空間,既擁有獨特的東方氣質,又不失現代生活該具備的優雅而二次創新。
▄設計需求: 設計師以中國傳統文化為依托,通過傳統吉祥喜慶圖案和色彩的使用,烘托火鍋店的氛圍,不論從中式窗格隔斷的抽象處理還是方圓的餐桌都打破了原有的古板空間,既擁有獨特的東方氣質,又不失現代生活該具備的優雅而二次創新。
▄設計風格定位: 本案設計靈感來源于我國章回體小說的格式,在整個空間中有多個氛圍的體驗,但是整個空間的風格又是統一的,是對中國歷史的文化痕跡的詮釋和記憶。 大堂:墻面隔斷的設計使用了中式窗格的元素進行抽象處理而成,餐桌的選擇有圓有方,體現了中國任人方圓的思想,使得空間充滿了靈動的氣息。大堂空間的裝飾品則較有新意,打破了較為古板的空間氛圍。 散座區:設計師對于古典的東方元素進行簡單的分析與抽象化處理,同時還在其中融入了較為現代的設計理念,是餐廳能夠既擁有獨特的東方氣質,又不失現代生活該具備的優雅,這也是對于傳統中式元素的二次創新。 雅座區:設計師以中國傳統文化為依托,以傳統吉祥喜慶圖案和傳統色彩為裝飾元素,烘托整體火鍋店的喜慶氛圍,表達出人們向往幸福、長壽、吉祥、喜慶的愿望,體現了中國的民風民俗。同時,也使用了各種花窗、木質結構、水墨字畫等元素進行堆砌,使空間異彩紛呈。


北京鑄誠大廈辦公裝修工程
北京銀河SOHO辦公裝修工程
301醫院裝修工程
