楷林IFC辦公裝修工程
| 項目名稱 | 楷林IFC辦公裝修工程 | 行業屬性 | 互聯網/電商/科技 |
| 項目地址 | 金水東路與心怡路交匯處 | 項目造價 | 109.8萬 |
| 主關鍵詞 |
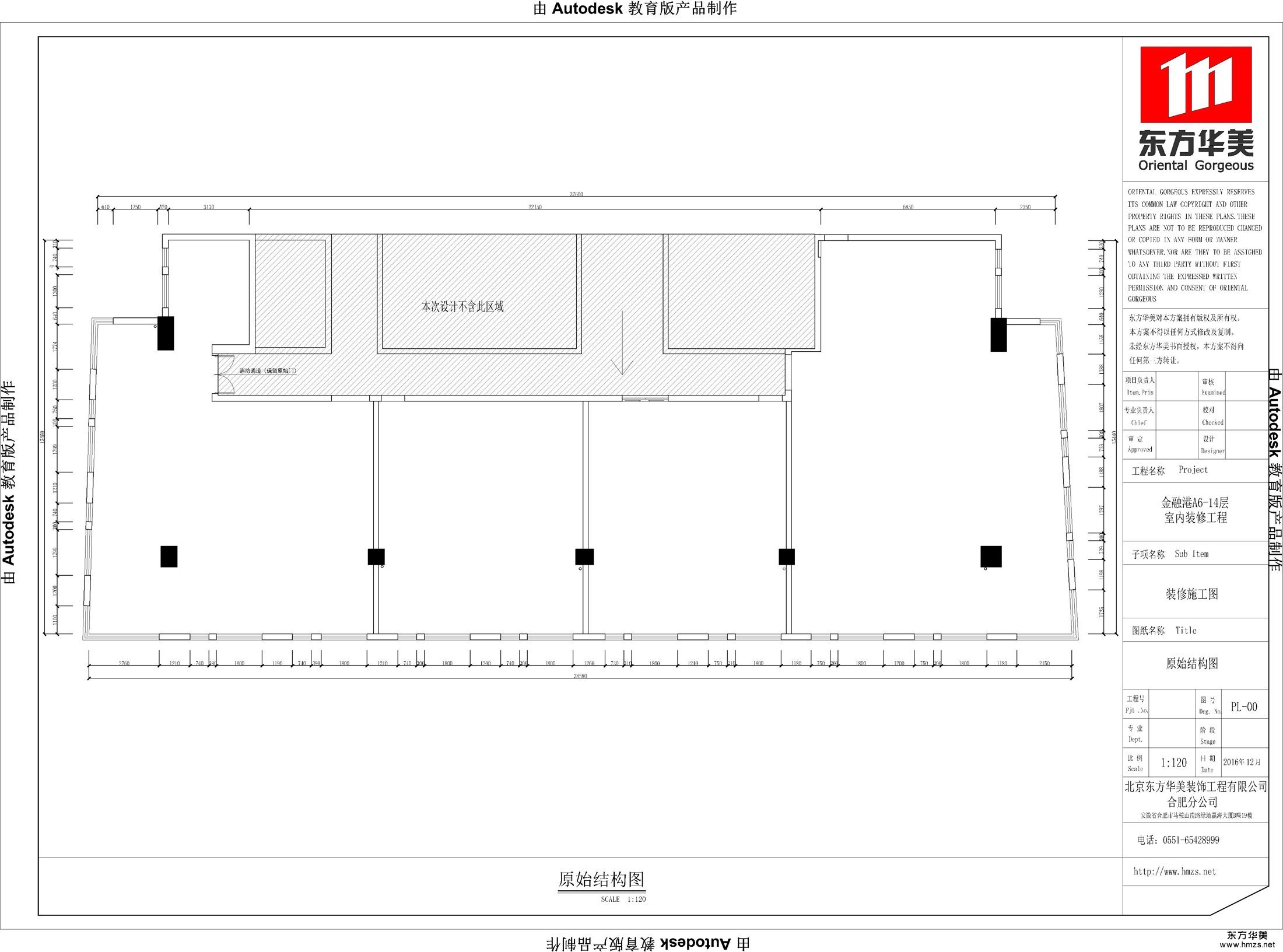
▄原建筑結構分析: 辦公室裝修在用料上多采用玻璃、不銹鋼,既透光,又可區別于家裝。另外,在裝修設計時要考慮緊急情況下,對客流的疏散路線設計,以及滅火器的配給等等。
▄設計需求: 辦公家具樣式與色彩的統一;平面布置的規整性;隔斷高低尺寸與色彩材料的統一;天花的平整性與墻面不帶花俏的裝飾;合理的室內色調及人流的導向等,這些都可以保證辦公室環境的不同風格和實用的統一。
▄設計風格定位: 目前,在我國許多企業的辦公室,為了便于思想交流,辦公室裝修加強民主管理,往往采用共享空間——開敞式設計,這種設計已成為現代新型辦公室的特征,它形成了現 代辦公室新空間的概念。 現代辦公室設計還注重于辦公環境的研究,將自然環境引入室內,綠化室內外的環境,給辦公環境帶來一派生機,這也是現代辦公室的另一特征。


北京鑄誠大廈辦公裝修工程
北京銀河SOHO辦公裝修工程
301醫院裝修工程
